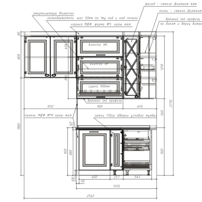
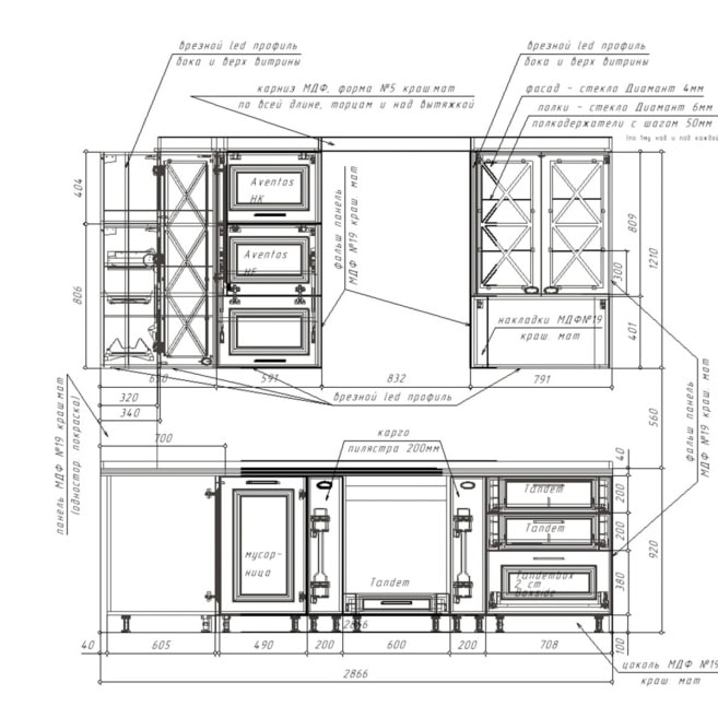
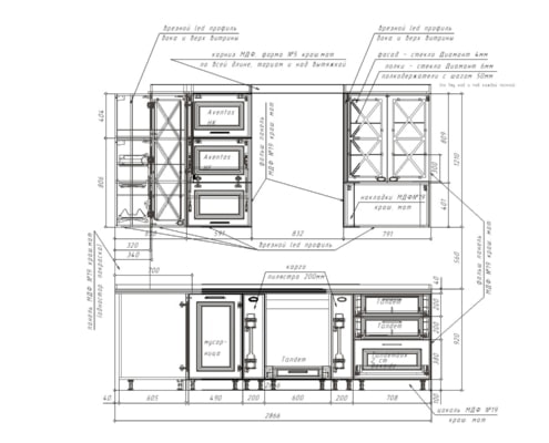
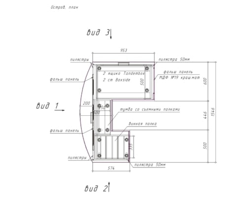
О данной кухне:
- фасад кухни – крашенный МДФ с индивидуальной фрезеровкой.
- Карниз, пилястры – МДФ крашеный
- Столешница – Кварц Бургундия
- Корпус – ДСП белое с ПУР поклейкой
- Механизмы – BLUM
КЛАССИЧЕСКАЯ КУХНЯ С БЕЛЫМИ ФАСАДАМИ МДФ
Классические кухни обладают непреходящей привлекательностью, которая не подвластна тенденциям. Они излучают элегантность, тепло и неподвластное времени очарование, что делает их популярным выбором для домовладельцев, стремящихся создать в своем доме изысканную, но в то же время привлекательную атмосферу. Одним из важных элементов, подчеркивающих классическую эстетику таких кухонь, является использование белых фасадов из МДФ (древесноволокнистой плиты средней плотности).
Классический дизайн кухни
Классические кухни характеризуются традиционными, нестареющими элементами дизайна, которые вызывают чувство ностальгии и комфорта. В таких кухнях часто встречаются витиеватые детали, богатая отделка деревом и акцент на мастерстве. В большом поместье или в уютном загородном доме классические кухни создают уютное пространство для приготовления пищи, развлечений и встреч с близкими.
Что такое фасады МДФ?
Фасады МДФ изготавливаются из древесноволокнистой плиты средней плотности – универсального продукта из переработанного древесного волокна, соединенного клеящей смолой. МДФ известна своей гладкой поверхностью, равномерной плотностью и способностью легко окрашиваться или ламинироваться, что делает ее идеальным выбором для кухонных шкафов и фасадов.
Преимущества белых фасадов МДФ в классических кухнях
Белые фасады из МДФ обладают рядом преимуществ для классических кухонь:
- Элегантность вне времени: Четкий, чистый белый цвет дополняет вневременную эстетику классических кухонь, создавая светлую и воздушную атмосферу.
- Универсальность: Белые фасады МДФ подходят к различным стилям дизайна, от традиционного до переходного, позволяя владельцам домов обустроить кухню в соответствии со своими предпочтениями.
- Отражающие свойства: Белые поверхности отражают свет, благодаря чему маленькие кухни кажутся больше и светлее, усиливая общее ощущение пространства.
- Легко чистить: Фасады из МДФ гладкие и непористые, поэтому их легко протирать влажной тряпкой, что идеально подходит для кухонь с напряженной работой.
Элементы дизайна, дополняющие белые фасады МДФ
При оформлении классической кухни с белыми фасадами из МДФ важно учитывать дополняющие элементы дизайна:
- Богатые акценты из дерева: Используйте элементы из натурального дерева, например, полы из твердых пород или столешницы из массива, чтобы добавить тепла и контраста к белым шкафам.
- Старинная фурнитура: Выберите фурнитуру в старинном стиле, например, латунные или бронзовые ручки и тяги, чтобы подчеркнуть классический шарм кухни.
- Задняя панель из плитки Subway: нестареющая задняя панель из плитки subway классического белого оттенка дополняет фасады из МДФ, придавая пространству текстуру и визуальный интерес.
Долговечность и уход за белыми фасадами МДФ
Белые фасады МДФ отличаются высокой прочностью и устойчивостью к короблению, растрескиванию и разбуханию, что делает их пригодными для ежедневного использования на кухне. Чтобы сохранить их первозданный вид, рекомендуется регулярно мыть их мягким моющим средством и водой, избегая использования жестких абразивов или химических чистящих средств, которые могут повредить отделку.
Экономическая эффективность белых фасадов из МДФ
По сравнению с вариантами из массива дерева или изготовленными на заказ шкафами, белые фасады из МДФ являются экономически выгодным решением, позволяющим добиться классической элегантности без лишних затрат. Кроме того, универсальность МДФ позволяет создавать сложные детали и варианты персонализации за меньшую цену, чем традиционные материалы.
Возможности персонализации белых фасадов из МДФ
Одно из главных преимуществ белых фасадов из МДФ – их универсальность и простота персонализации. Домовладельцы могут выбирать из множества стилей, профилей и отделок, чтобы добиться желаемой эстетики своей классической кухни. Будь то дверцы с рельефными панелями, шкафы в стиле шейкер или гладкие современные линии – белые фасады МДФ могут быть подобраны в соответствии с любым дизайнерским видением.
Процесс установки
Установка белых фасадов МДФ обычно предполагает работу с квалифицированным плотником или установщиком кухни, который может обеспечить точные измерения, правильное выравнивание и бесшовную интеграцию с существующими шкафами и техникой. Владельцы домов должны учитывать такие факторы, как выбор фурнитуры, материалы столешниц и освещение, чтобы создать целостный и функциональный дизайн кухни.
Популярные классические стили кухонь с белыми фасадами из МДФ
Несколько классических стилей кухни прекрасно сочетаются с белыми фасадами из МДФ, в том числе:
- Французский кантри: Примите деревенскую элегантность с отделкой в стиле дистресс, витиеватыми деталями и старинными акцентами.
- Колониальное возрождение: традиционное американское очарование с помощью шкафов с рельефными панелями, молдингов с коронами и нестареющей фурнитуры.
- Викторианский: Передайте роскошь викторианской эпохи с помощью замысловатой фрезеровки, декоративных карнизов и витражей.
Как вписать белые фасады МДФ в современную кухню
Хотя белые фасады МДФ традиционно ассоциируются с классическими стилями дизайна, они могут быть использованы и в современной кухонной эстетике. Сочетание гладких, минималистичных шкафов с белыми фасадами из МДФ создает современный образ, который одновременно изыскан и функционален, сочетая в себе элегантность вне времени и современное удобство.
Советы по очистке и уходу за белыми фасадами МДФ
Чтобы белые фасады из МДФ выглядели наилучшим образом, следуйте этим советам по уходу:
- Регулярно протирайте пыль: Удаляйте пыль и мусор с поверхностей фасадов мягкой тканью без ворса.
- Бережная чистка: Протирайте фасады мягким мыльным раствором и водой, избегая абразивных чистящих средств или чистящих губок, которые могут поцарапать отделку.
- Избегайте чрезмерной влажности: Держите фасады сухими и не подвергайте их длительному воздействию влаги, чтобы предотвратить коробление или повреждение материала МДФ.
Сравнение с другими материалами для кухонных фасадов
Несмотря на то что белые фасады из МДФ обладают множеством преимуществ, при проектировании кухни необходимо рассмотреть альтернативные материалы, такие как массив дерева, ламинат или термопленка. Каждый материал имеет свои уникальные характеристики, стоимость и требования к обслуживанию, что позволяет домовладельцам выбрать вариант, наиболее соответствующий их потребностям и предпочтениям.




































































